CURRENT DEVELOPMENT PORTFOLIO
Over 110 residential properties sold subject to final sales completion or scheduled for development with a combined project sales value in excess of ยฃ50m.
40 properties in various stages of planning as joint ventures or options to purchase subject to planning.
Railway Street, Hertford
6 houses, 22 apartments and one commercial unit in the centre of town and directly opposite Hertford East station.

Perne Close, Cambridge
14 properties including 8 houses close to the centre of Cambridge.


Bassingbourn cum Kneesworth
Development of 20 houses of which 10 were for private sale. Completion of final sale expected 2Q 2024.

Coldhams Place, Cambridge
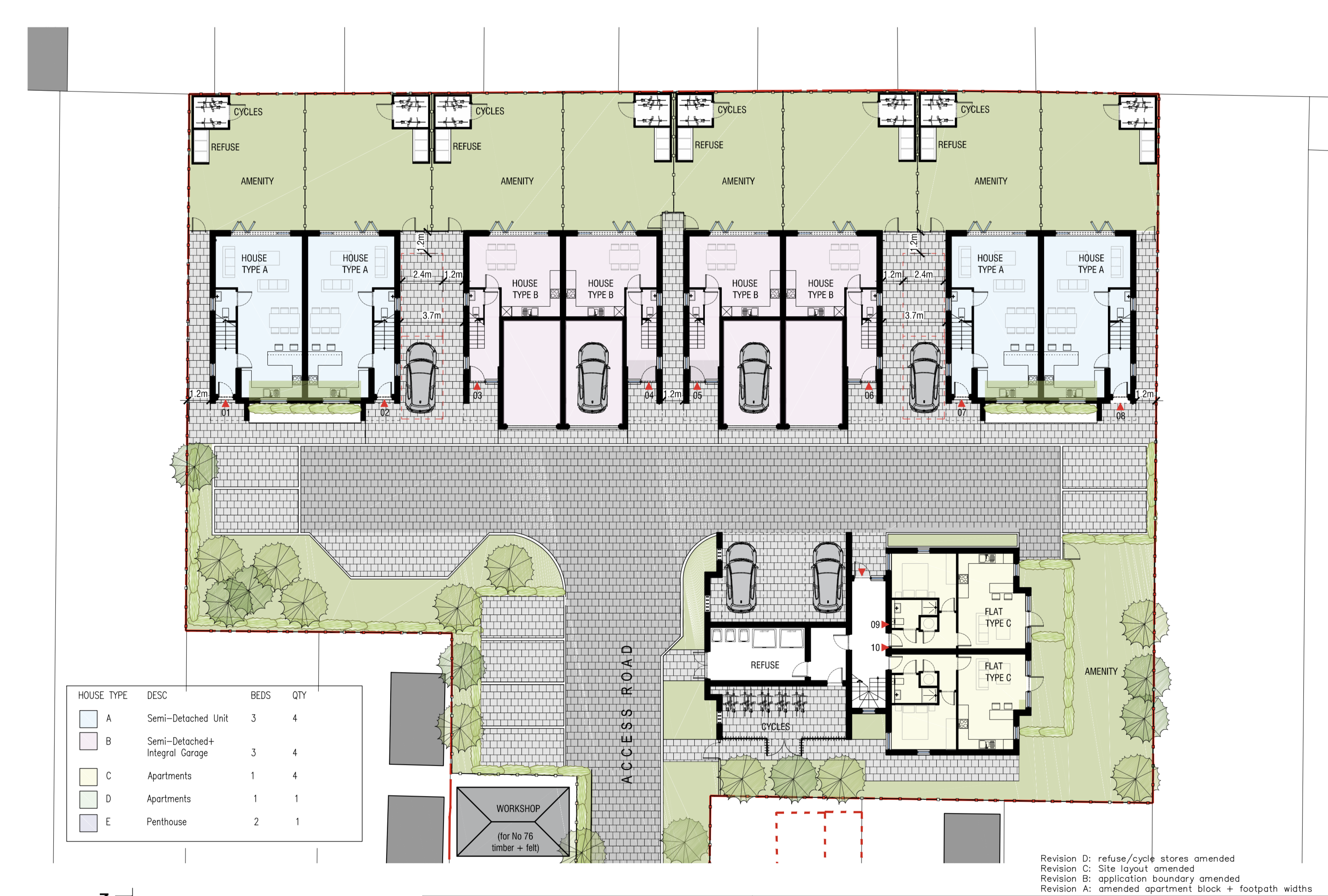
14 houses in South East Cambridge.


St Neots
Town centre site of 18 properties regenerating a tired dilapidated area in the heart of town into a smart, new residential area.

Wimbledon Village, London

A 5,705 sq. ft individual property in the heart of Wimbledon Village.
High Cedar Drive, Wimbledon

Developed a new 3,345 sq ft property close to Wimbledon Common.
Lancaster Gardens, Wimbledon Village
A new 6,480 sq ft property in the heart of Wimbledon Village. Development completed in September 2023.


Sylvan Avenue, Emerson Park
Site for two new 8,800 sq ft properties on one of the most prestigious roads in Emerson Park, Hornchurch. Currently under offer.


Hind Gardens, Hindhead, Surrey
38 properties comprising 28 houses and 10 apartments on the boundary of the Devils Punchbowl National Trust site, an Area of Outstanding Natural Beauty in Hindhead in Surrey. Development underway and expected to be completed in Summer 2025.

Planning Projects
Further projects are in progress for acquisition subject to planning across the South East of England.
Coriolis Property Partners is currently funding planning with high returns to investors.
Please drop us a line to indicate your interest.
(June 2024)